【Mechanical Engineering Autocad Drawings】
Autocad Mechanical Engineering ,Machine Design, CAD / CAM Machinery Industry ,Mechanical machinery and equipment ,AutoCAD Mechanical Engineering design
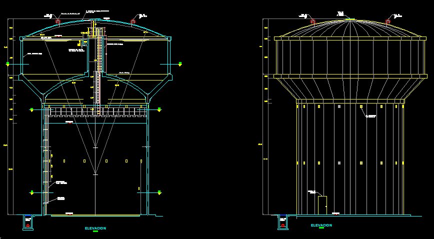
Elevated water tank
Download Mechanical Engineering Autocad Drawings NOW!
Only $69 !!
All autocad drawings can be downloaded IMMEDIATELY!
Electromechanical pump
Robotic arm
Grundfos Pumps
Pneumatic pumps
Pump
Diesel fuel tank
Sludge valve
Cylinder pneumatic clutch
Oil processing plant
Jaw Crusher
Ship tapes
Catalytic column
bulldozer
Refinery
Diesel tank
Deluge valve
Flour Processing Zone
Conveyor
Concentrator
Bearing
Protein powder dryer
engine
Coffee machine
Multipurpose reactor
Variable speed fan
Sand filter tank
Lapper
Aluminum cutter
Electric motors
Assembly machine
blast furnace
motor
Crusher
Glass reactor
Metal stents
Drawer buffer
Water cutter
Regulating valve
【Home】